LOGIN
HOME
CATEGORIES
UPLOAD FILE
PRICING
HOUSE PLAN
ABOUT US
CONTACT US
College plan with dimension detail in autocad file
Home
Categories
Architecture
Collage Drawing
College plan with dimension detail in autocad file
Uploaded by:
Eiz
Luna
View Profile
View Profile
Description
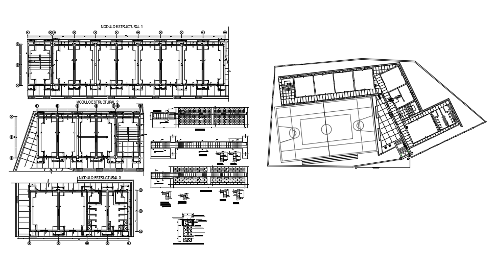
download college plan with dimension detail in autocad file; includes a site plan of the college building and structural plan.
File Type:
DWG
File Size:
1.9 MB
Category::
Architecture
Sub Category::
Collage Drawing
type:
Gold
Uploaded by:
Eiz
Luna
View Profile
Download
Add to libary
find Latest
Related
Files