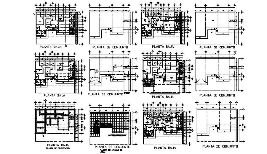
Ground floor of the assembly plant detail is given in this Autocad drawing file. Download the Autocad drawing file.
Description
Ground floor of the assembly plant detail is given in this Autocad drawing file. The length and breadth of the plan is 20m and 17m respectively. For more details download the Autocad drawing file. Thank you for downloading the Autocad drawing file and other CAD program files from our website.
Uploaded by:

