LOGIN
HOME
CATEGORIES
UPLOAD FILE
PRICING
HOUSE PLAN
ABOUT US
CONTACT US
Design of bungalow with detail dimension in autocad
Home
Categories
Architecture
Bungalow House Design
Design of bungalow with detail dimension in autocad
Uploaded by:
Eiz
Luna
View Profile
View Profile
Description
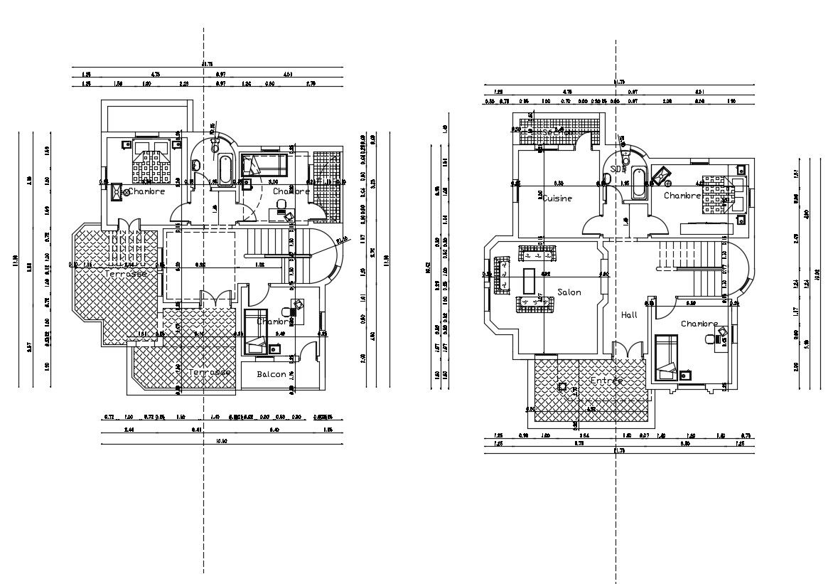
Design of bungalow with detail dimension in autocad which includes detail of drawing room, bedroom, kitchen, dining room, bathroom, toilet, etc.
File Type:
DWG
File Size:
1.9 MB
Category::
Architecture
Sub Category::
Bungalow House Design
type:
Gold
Uploaded by:
Eiz
Luna
View Profile
Download
Add to libary
find Latest
Related
Files