LOGIN
HOME
CATEGORIES
UPLOAD FILE
PRICING
HOUSE PLAN
ABOUT US
CONTACT US
Hotel Building Plan In DWG File
Home
Categories
Architecture
Hotels and Restaurants
Hotel Building Plan In DWG File
Uploaded by:
Eiz
Luna
View Profile
View Profile
Description
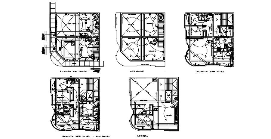
Hotel Building Plan In DWG File it includes detail of electric layout plan, detail of electric installation, electric unit details.
File Type:
DWG
File Size:
3.4 MB
Category::
Architecture
Sub Category::
Hotels and Restaurants
type:
Gold
Uploaded by:
Eiz
Luna
View Profile
Download
Add to libary
find Latest
Related
Files