Shopping Center Plan CAD Drawings
Description
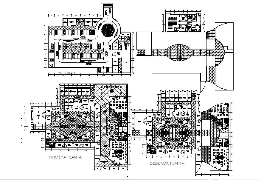
Shopping Center Plan CAD Drawings which provides detail of different department, detail of the first floor, detail of the second floor, etc it also gives detail of the parking area.

Uploaded by:
Eiz
Luna

Uploaded by:
Luna