Elevation building plan in AutoCAD file
Description
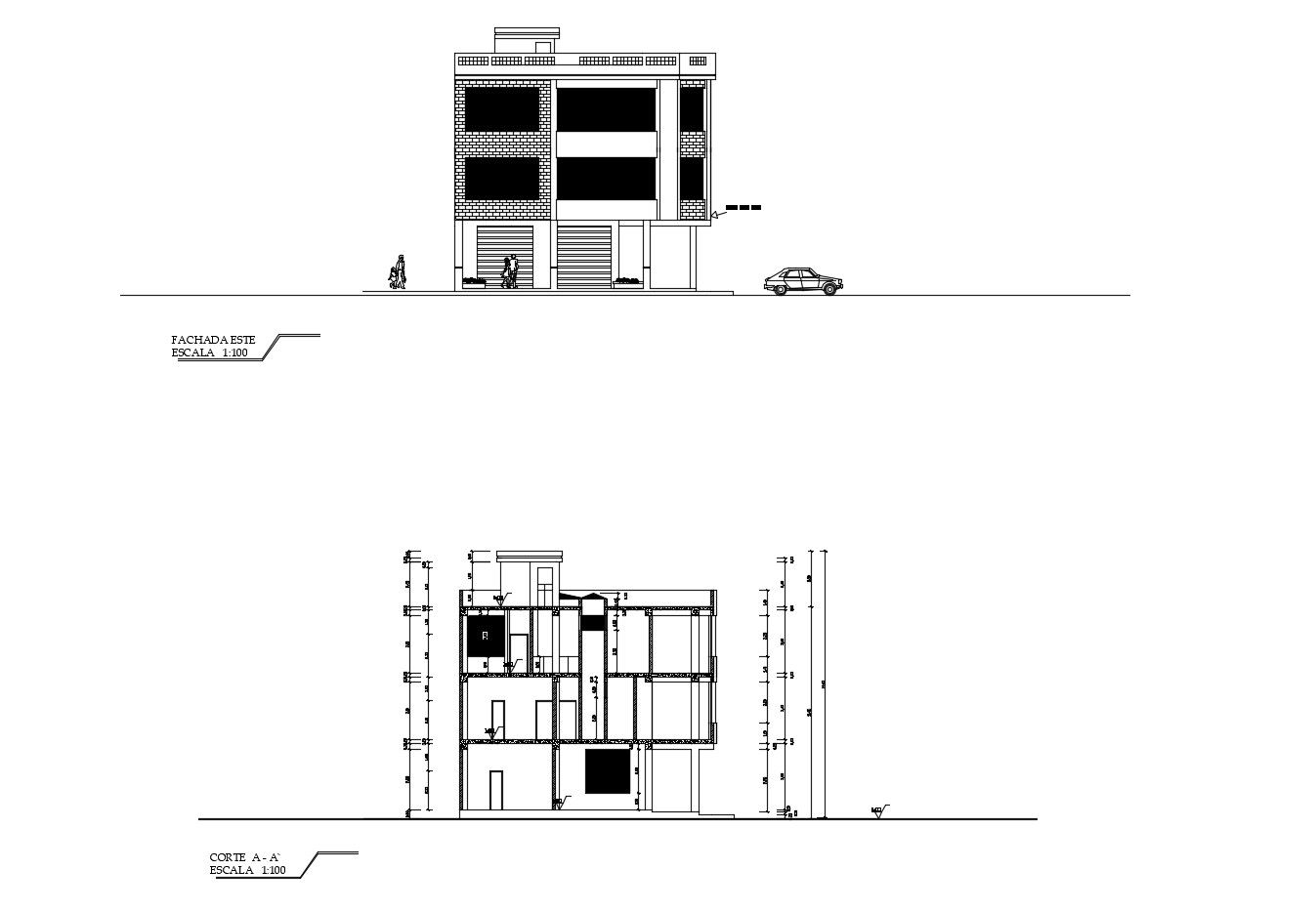
Elevation building plan in AutoCAD file which provides detail of front elevation, detail of the section, detail of floor level, etc it also gives detail of parking area.

Uploaded by:
Eiz
Luna

Uploaded by:
Luna