LOGIN
HOME
CATEGORIES
UPLOAD FILE
PRICING
HOUSE PLAN
ABOUT US
CONTACT US
Hotel plan
Home
Categories
Architecture
Hotels and Restaurants
Hotel plan
Uploaded by:
Eiz
Luna
View Profile
View Profile
Description
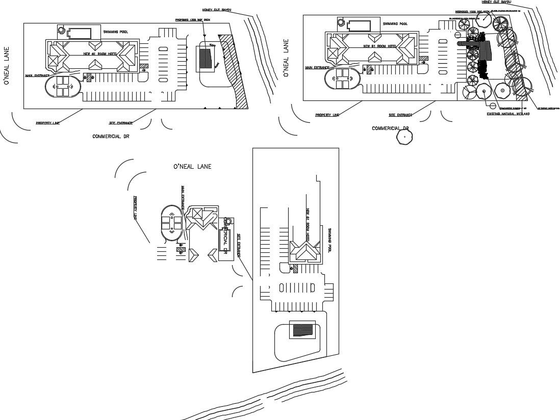
Hotel plan in DWG file which includes the details of the main gate, room, reception area, washroom, swimming pool, side gate, lawn area, etc.
File Type:
DWG
File Size:
2.1 MB
Category::
Architecture
Sub Category::
Hotels and Restaurants
type:
Gold
Uploaded by:
Eiz
Luna
View Profile
Download
Add to libary
find Latest
Related
Files