2 d cad drawing of concrete bridge elevation plan auto cad software
Description
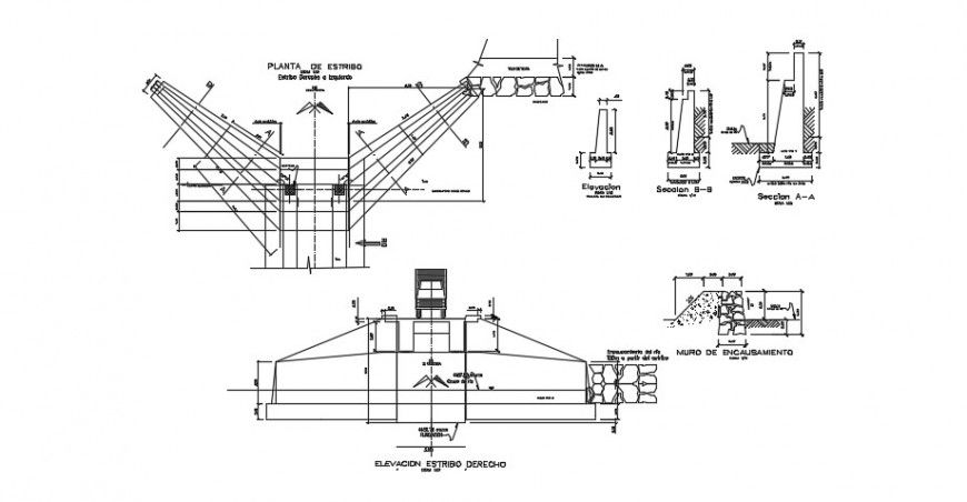
2d cad drawing of concrete bridge elevation plan autocad software detailed with concrete detailing with other detailed and parallel lines connected for look out and dimension been mentioned in drawing with relative detailed with other dimensions given in drawing and other detailed drawing with other different panel seen with description.
Uploaded by:
Eiz
Luna

