Complete kitchen furniture cabinet detail
Description
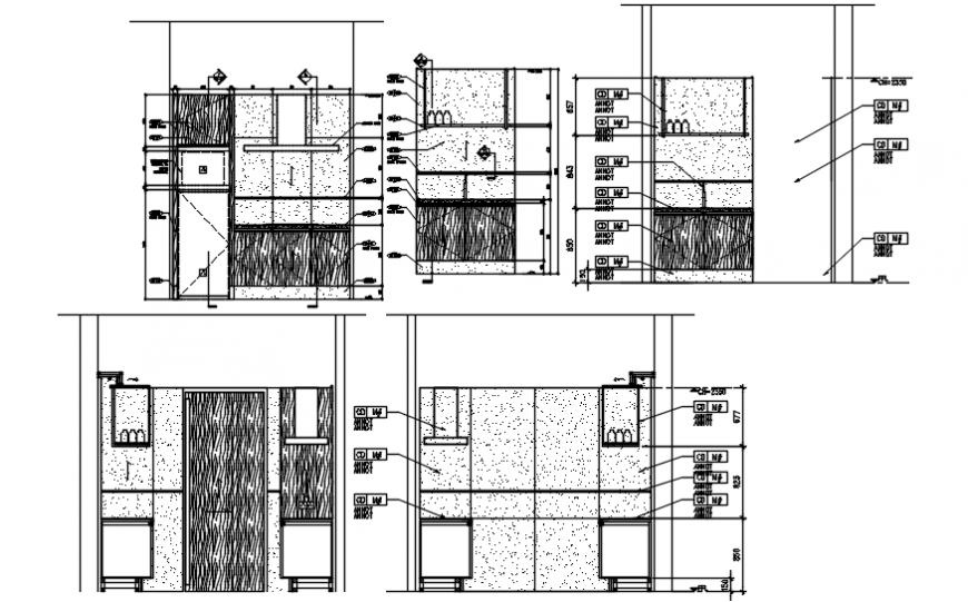
Complete kitchen furniture cabinet detail.Kitchen all sided section, plan and interior and furniture drawing details that includes a detailed view of all sided section details of kitchen with wall design and tile design, dimensions details and furniture details, interior details and wooden furnishing concept file details in auto cad format
Uploaded by:
Eiz
Luna

