Beam sections, footing and structure details for house dwg file
Description
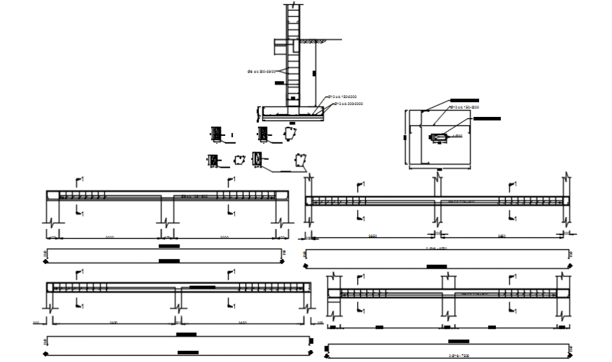
Beam sections, footing and structure details for house that includes a detailed view of continues slab details with typical beam details, typical solid slab and reinforcement details, typical beam foundation details with dimensions details, memory of material details, construction details and scale details, structure details and much more of beam details.
Uploaded by:
Eiz
Luna

