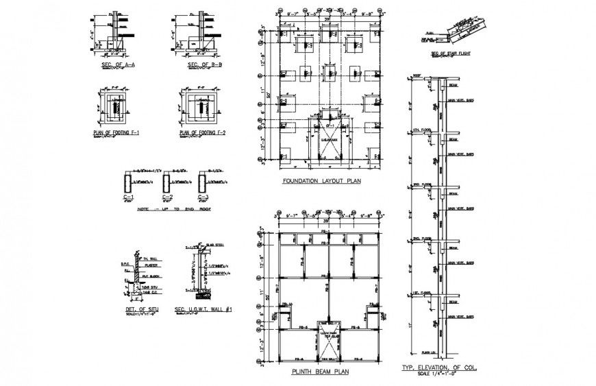
Plinth beam plan autocad file of 2d drawing
Description
Plinth beam plan autocad file of 2d drawing tht shows reinforcemnbt intention and compression along with main and distributiin hook up and bent up bars. Stirrupes are provided to hold up bars in position with effec tive covered and clear cover detrail. The struture is reinfoirced concrete cement (RCC) struture and detailed plinth beamb and other construction detail.
File Type:
DWG
File Size:
2 MB
Category::
Construction
Sub Category::
Reinforced Cement Concrete Details
type:
Gold
Uploaded by:
Eiz
Luna

