One family house plan with sanitary installation drawing details dwg file
Description
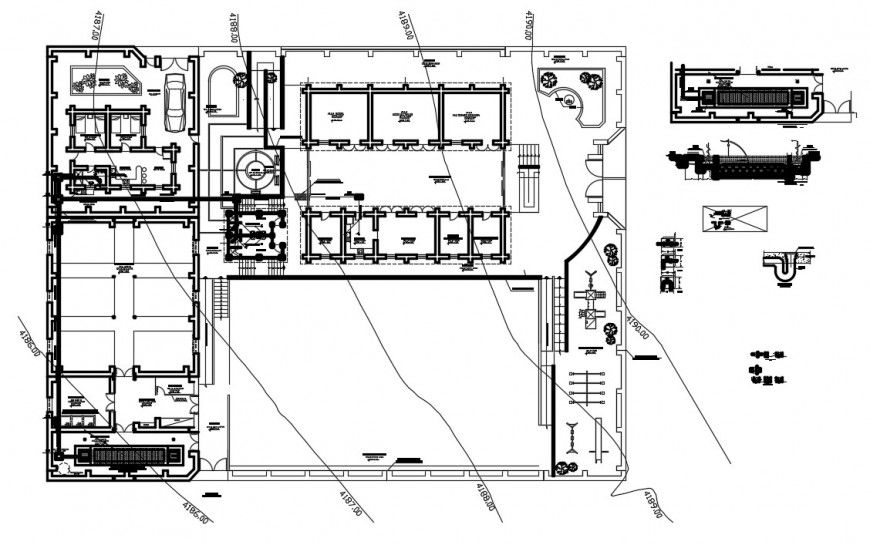
One family house plan with sanitary installation drawing details that includes a detailed view of main entry house door, drawing room and living room with family hall details kitchen and dining area, indoor staircases and laundry area and balcony with sanitary equipment installation details, doors and ventilation details with plumbing details and interior details with dimensions details, wall section details and much more of house details.
Uploaded by:
Eiz
Luna

