Drawing details of parking system plan 2d view dwg file

Drawing details of parking system plan 2d view dwg file
Profile

Uploaded by:

Eiz

Luna

Description

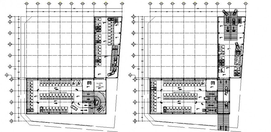
Drawing details of parking system plan 2d view dwg file that shows parking space details with dimension details and 90-degree parking space details also included in drawings.

Profile

Uploaded by:

Eiz

Luna

find Latest

Related Files

WhatsApp Chat