Sectional detail of a villa dwg file
Description
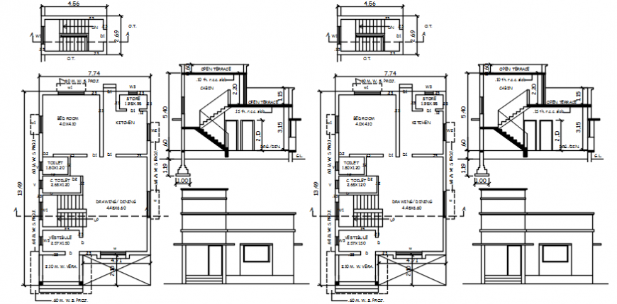
Sectional detail of a villa, here there is sectional detail of villa structure showing bedroom concept and terrace details
Uploaded by:
Eiz
Luna
Sectional detail of a villa, here there is sectional detail of villa structure showing bedroom concept and terrace details
Uploaded by:
Luna