Elevation design of residence house drawing
Description
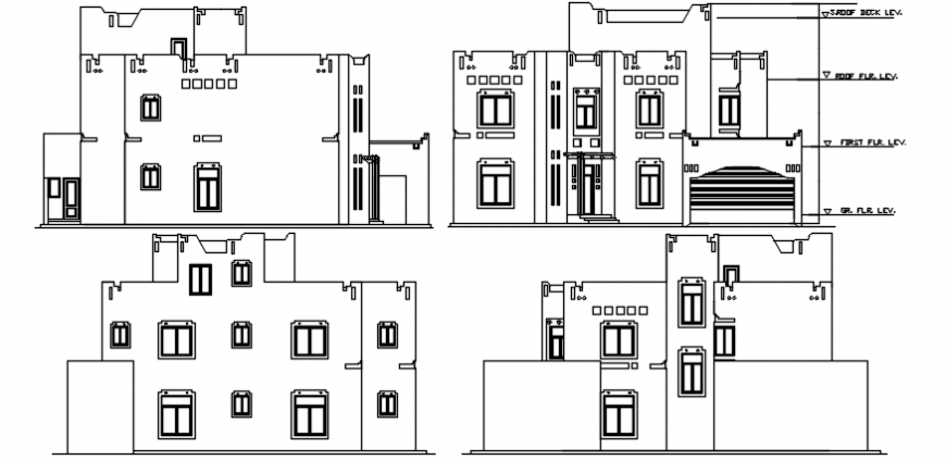
Find here all side 2d modern elevation design with structure plan and deisndion detail, get more detailing about elevation design in this cad drawing.
Uploaded by:
Eiz
Luna
Find here all side 2d modern elevation design with structure plan and deisndion detail, get more detailing about elevation design in this cad drawing.
Uploaded by:
Luna