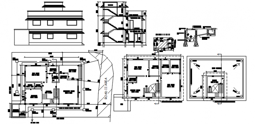
Luxurious big bungalow and plan
Description
Luxurious big bungalow 3d concept detailing ,elevation of a modern bungalow and exterior , brick construction and terracota tiles roofing detail , complete view of house
Uploaded by:
Eiz
Luna
Luxurious big bungalow 3d concept detailing ,elevation of a modern bungalow and exterior , brick construction and terracota tiles roofing detail , complete view of house
Uploaded by:
Luna