2 d cad drawing of house plan with kitchen layout Auto cad software
Description
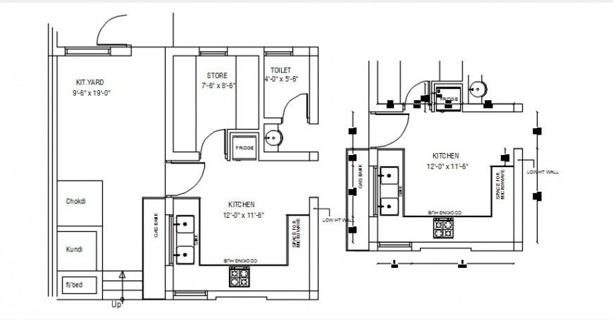
2d cad drawing of house plan with kitchen layout autocad software detailed with kit yard and chokdi and kundi and kitchen area and store room and toilet area, and kitchen layout section separately been detailed in the drawing.
Uploaded by:
Eiz
Luna

