Basement parking floor drawing details of apartment building dwg file
Description
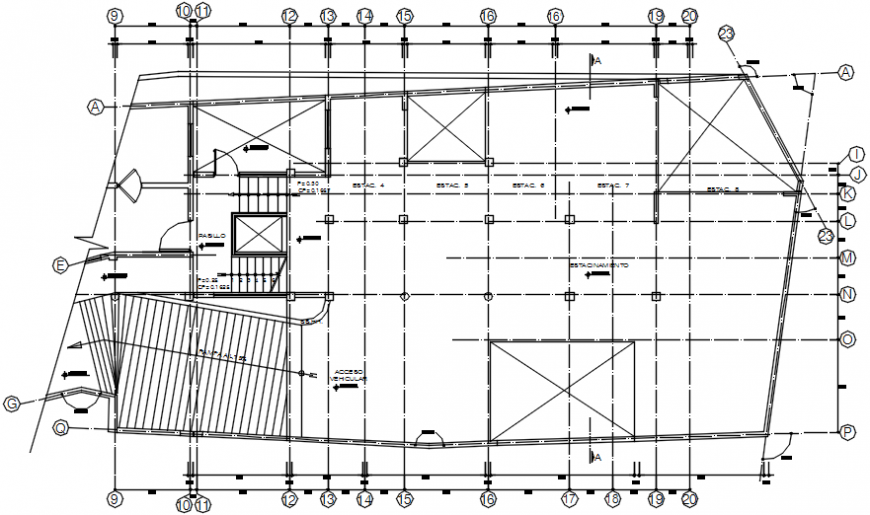
Basement parking floor drawing details of apartment building that includes a detailed view of car parking space, dimensions and scale details, staircase and sanitary details and much more of apartment details.
Uploaded by:
Eiz
Luna

