2 d cad drawing of steel structure Auto Cad software
Description
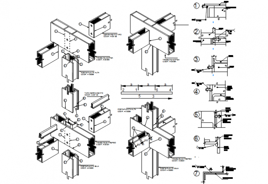
2d cad drawing of steel structure autocad software detailes with connected structure with other drawing with detailed pipes and other drawing seen and attached pipes and positive reactor for drawing seen.
File Type:
DWG
File Size:
169 KB
Category::
Construction
Sub Category::
Construction Detail Drawings
type:
Gold
Uploaded by:
Eiz
Luna

