2 d cad drawing of college elevation Auto Cad software
Description
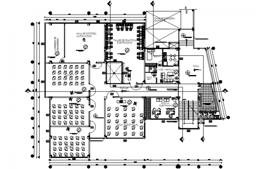
2d cad drawing of college elevation autocad software detailed with plan including office room and auditorium with basic facilities and furnished chairs and table and production area with seprate rooms garden around and seprate toilet area and other facilities for area been given in drawing.
Uploaded by:
Eiz
Luna

