2 d cad drawing of bank plan and section Auto Cad software
Description
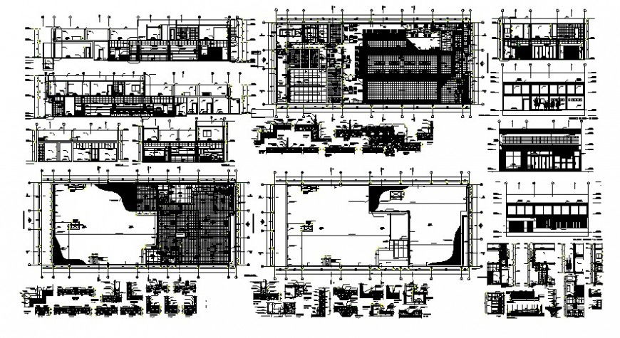
2d cad drawing of bank plan and section autocad software detailed with six drawing plan work and and inquiry counter and manager office and seprate office cabins ,toilet area for both ladies and gents separately and other cequr issue and cash counter centre and withdraw office and other counters for bank details and description given below and particular area outside with farden flowery pots.
Uploaded by:
Eiz
Luna

