CAD drawings details of RCC staircase structure autocad file
Description
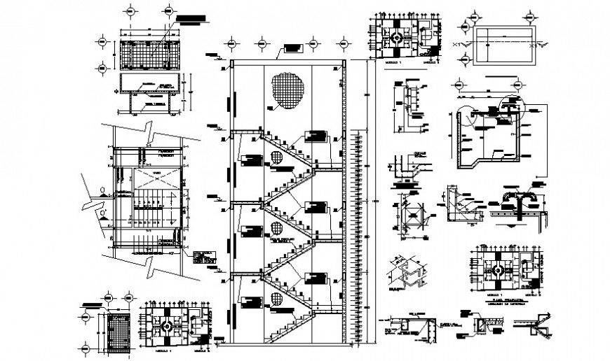
CAD drawings details of RCC staircase structure autocad file that shows staircase plan details along with staircase construction dteials and railing tread details along with riser height and tread wdth dteials.reinforcement detials in tension and compression zone along with main and distribution hook up and bent up bar sdteials and the structure is a reinforced concrete cement (RCC) structure.
Uploaded by:
Eiz
Luna

