2d CAD plan details of housing apartment drawings autocad software file
Description
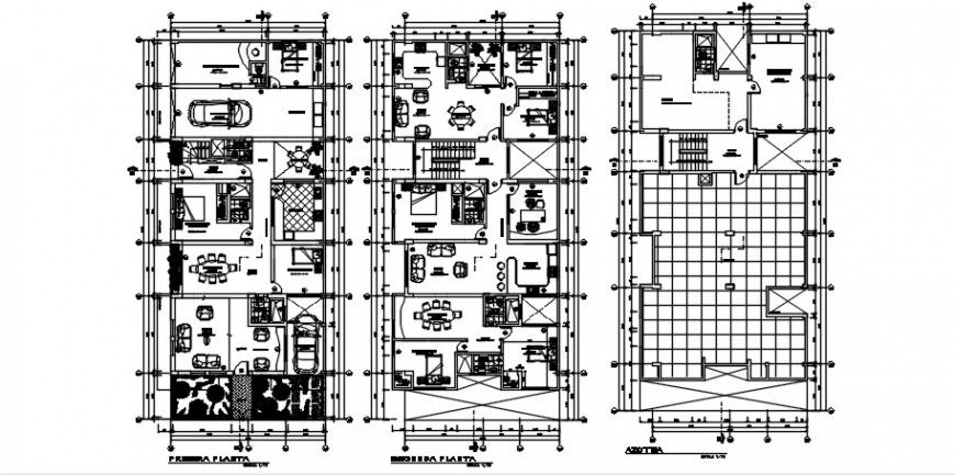
2d CAD plan details of apartment drawings autocad software file that shows work plan of the house along with floor level details and room details of drawing room bedroom kitchen and dining area with sanitary toilet and bathroom dteials. Dimension hidden line details with staircase dteials parking space details also included in drawings.
Uploaded by:
Eiz
Luna
