Drawing details of two bhk residential house layout plan autocad file
Description
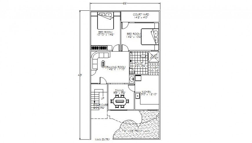
Drawing details of two bhk residential house layout plan autocad file that shows work plan of the house along with room interior dimension and room includes details of bedroom area drawings room area with kitchen and dining area details and staircase details. Door window blocks details and staircase saniatry toilet area details.
Uploaded by:
Eiz
Luna

