General plan of house elevation and section view in AutoCAD file
Description
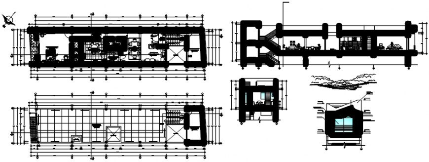
General plan of house elevation and section view in AutoCAD file its include detail of main entrance with door and bedroom kitchen and washing area hall and wall in plan, elevation with floor and floor level with necessary dimension.
Uploaded by:
Eiz
Luna

