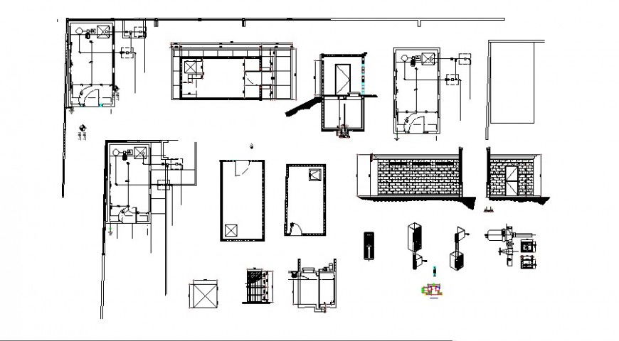
Kitchen elevation, section, plan and construction details dwg file
Description
Kitchen elevation, section, plan and construction details that includes a detailed view of all sided section details of kitchen with wall design and tile design, dimensions details and furniture details, interior details, cooking area with platform with capacity of load of the ground at level of foundation of shoes, foundation floors and concrete-cement mixture, false floors with Surpluses and much more of kitchen details.
Uploaded by:
Eiz
Luna

