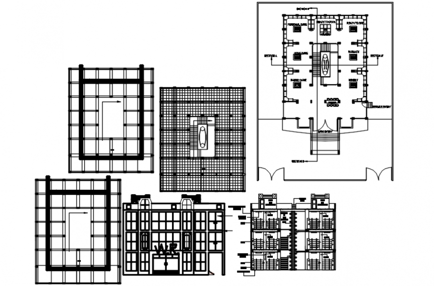
Shopping mall building main elevation, section, plan and structure details dwg file
Description
Shopping mall building main elevation, section, plan and structure details that includes a detailed view of flooring view with indoor and outdoor doors and windows view and staircase elevation and sectional view details, balcony view with wall design, parking area and dimensions and roof or terrace view and much more of shopping mall building details.
Uploaded by:
Eiz
Luna

