Sectional elevation of a building
Description
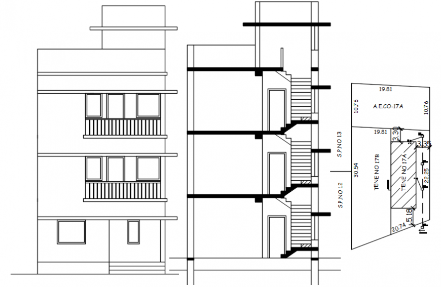
Sectional elevation of a building and inner detail dwg file, outside shutter detailing is shown, human figure detailing, floor furniture detailing etc
Uploaded by:
Eiz
Luna
Sectional elevation of a building and inner detail dwg file, outside shutter detailing is shown, human figure detailing, floor furniture detailing etc
Uploaded by:
Luna