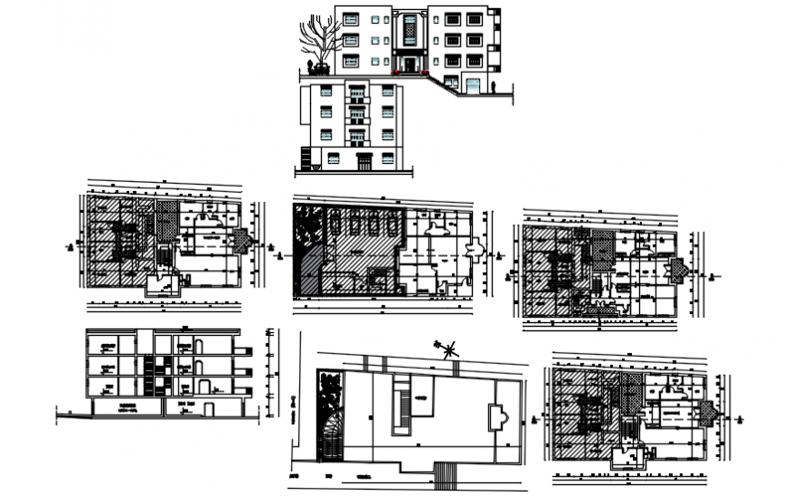
Floor plan of apartment with elevation in auto cad software
Description
Floor plan of apartment with elevation in auto cad software its include detail of area distribution and door position and wall view, drawing room bedroom kitchen and washing area balcony and elevation include base door and window with floor area.
Uploaded by:
Eiz
Luna

