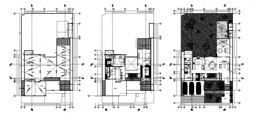
Ground, first and cover plan drawing details of residential house dwg file
Description
Ground, first and cover plan drawing details of residential house that includes ground, first etc with car parking area, garden area with main entry house door, drawing room and living room with family hall details kitchen and dining area, indoor staircases and laundry area and balcony, details and bedroom or master bedroom, toilets and bathroom with indoor doors, furniture details and much more of bungalow details.
Uploaded by:
Eiz
Luna
