AUTOcad file of airport electrical detail
Description
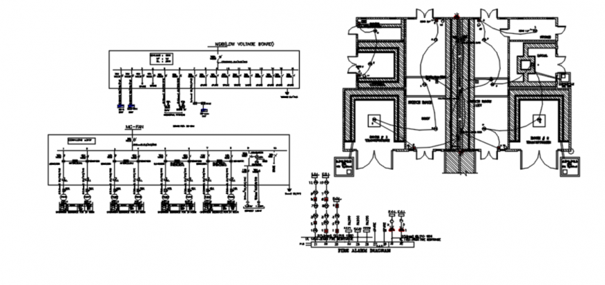
AUTOcad file of airport electrical detail which includes ground floor fire alaram layout details , schedule of wires, fire alarm diagram etc.
Uploaded by:
Eiz
Luna
AUTOcad file of airport electrical detail which includes ground floor fire alaram layout details , schedule of wires, fire alarm diagram etc.
Uploaded by:
Luna