Aluminum Window Drawing Details AutoCAD DWG File for Designers
Description
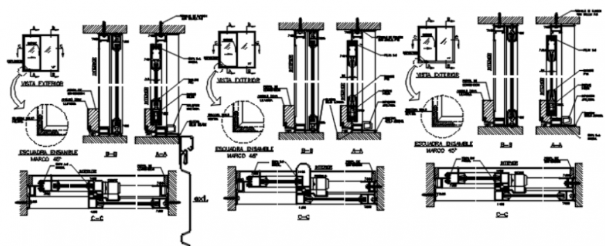
Drawing of aluminum window details AutoCAD file which includes exterior view, sectional plan details, sectional elevation of the windows etc.
Uploaded by:
Eiz
Luna
Drawing of aluminum window details AutoCAD file which includes exterior view, sectional plan details, sectional elevation of the windows etc.
Uploaded by:
Luna