Projects
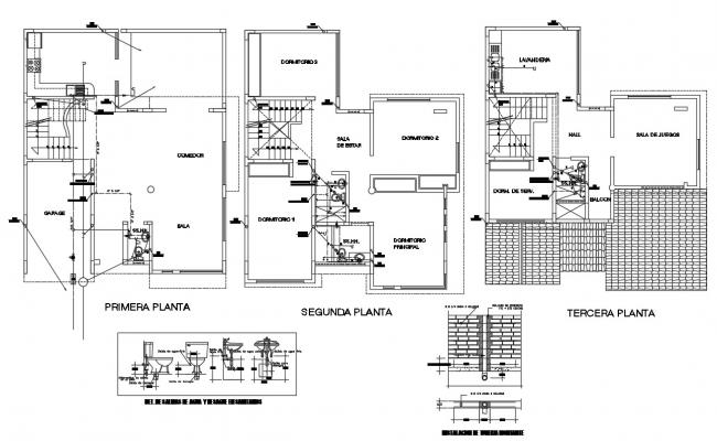
Sanitary Installation Plan For House
MORE DETAILS
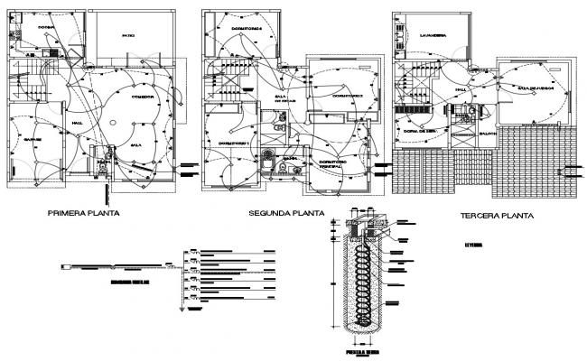
Electrical Wiring Layout plan
House section plan in AutoCAD file