Projects
House Construction Drawing Column Layout Plan DWG File
MORE DETAILS
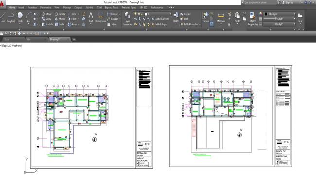
Bungalow Plan CAD Drawing Free Download DWG File
Hotel plan drawing bedrooms floor plan dwg file
Foundation Plan Drawing Free Download DWG File
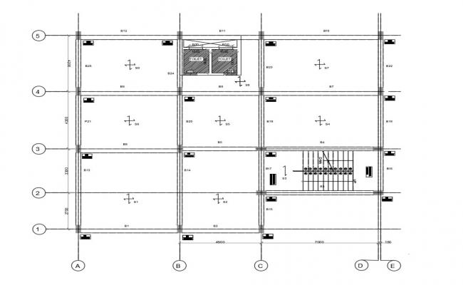
row house structural plan drawing
3D Commercial Building Free Download SKP File