Projects
5 A SIDE PITCH AUTOCAD DRAWING
MORE DETAILS
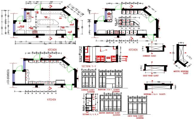
Kitchen Unit and Closet drawings in AutoCAD DWG format
MULTIPLE RESIDENTIAL WORKING DRAWINGS AUTOCAD DWG