Site plan and block location details of apartment flats cad drawing details dwg file
Description
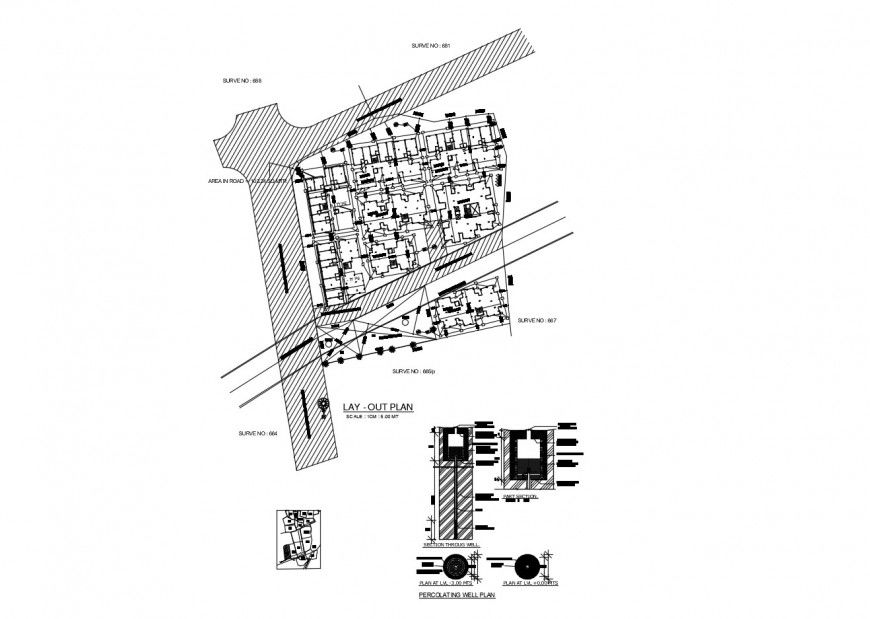
Site plan and block location details of apartment flats cad drawing details that includes a detailed view of wide entry gate with indoor wide roads, plot or house numbers and total area details, common plot and road with house plot and children park space, blocks numbers and location details, senior citizen area, sample house with club house, running track and much more of site plan details.

Uploaded by:
Eiz
Luna

