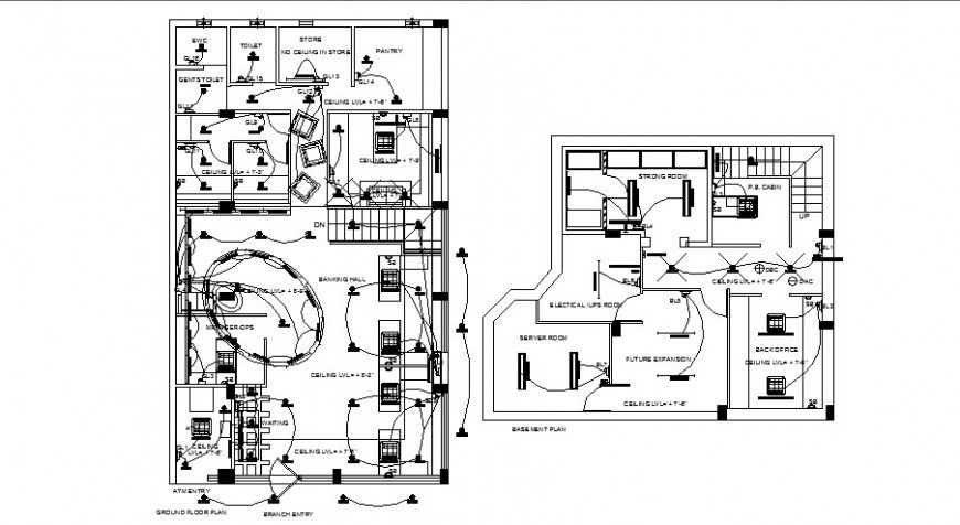
Basement and ground floor plan with electrical layout plan of bank office building dwg file
Description
Basement and ground floor plan with electrical layout plan of bank office building that includes a detailed view of power layout details, lighting layout details, computation and schedule of loads, general notes and specifications, panel board details, riser diagram, convienence details, reception area, waiting area, cabin, cash counters, bottom false ceiling, computer lab, bottom of grid ceiling, counselling room and library, conference room, manager cabin, meeting room, cleaning department, departmental office, smoking area, head offices, accountant rooms, pantry, kitchen, dining area, server room, meeting room, pantry and much more of bank office floor plan details.

Uploaded by:
Eiz
Luna

