Floor plan distribution details of market with community center dwg file
Description
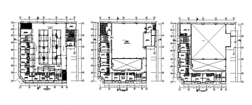
Floor plan distribution details of market with community center that includes a detailed view of mai entry gate, children play area, common lobby, theater, passage, display area, shopping plaza department, green space, gallary, theme restaurant, viewing gallery, kitchen, waiting area, open space, sanitary facilitites, market plant food, plant - supplies, plant - meat and seafood, lift - food, elevation - supplies, elevation - meat and seafood, cut a - a'- food, cut a - a'- supplies, cut a - a'meat and seafood, detail 2 (columns), detail 3 (cover), detail 5 (container), plane of axes and much more of market details.

Uploaded by:
Eiz
Luna

