Multi-cousins local restaurant elevation, section and floor plan details dwg file
Description
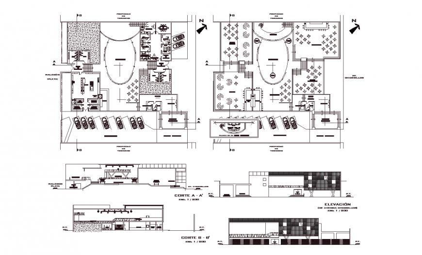
Multi-cousins local restaurant elevation, section and floor plan details that includes a detailed view of flooring view with doors and windows view and staircase view details, balcony view with wall design, dimensions and roof or terrace view, car parking view with garden area, reception area with waiting lounge, dining area with banquaet hall and kitchen and cleaning department details, staff room and sanitary facilities, furniture details with interior details and much more of restaurant project.

Uploaded by:
Eiz
Luna

