Autocad 2D DWG drawing file has the Resort layout. Download the DWG Autocad file.
Description
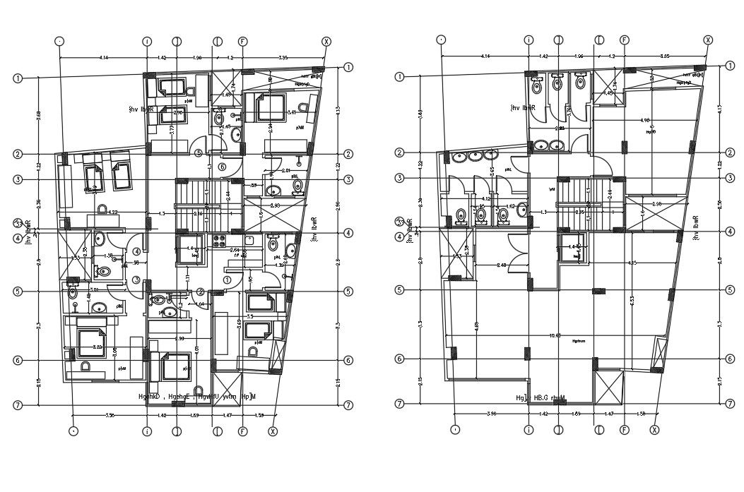
Autocad 2D DWG drawing file has the Resort layout. In this drawing at first floor there are 6 bed rooms with attached toilets. Furnitures were provided at the rooms and hall. Marking were done for beam line. Footing marking also given. Stair case were provided. Thanks for downloading the autocad 2D DWG drawing file and other CAD program from the our cadbull website.
Uploaded by:

