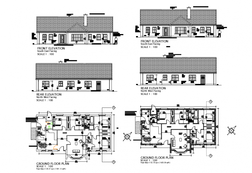
Family house all sided elevation and ground floor plan details dwg file
Description
Family house all sided elevation and ground floor plan details that includes a detailed view of flooring view, doors and windows view, staircase sectional details, dimensions details, doors and windows view, roof or terrace view, wall design, tree view with main entry house door, drawing room, living room, family hall, kitchen, dining area, indoor staircases, laundry area, balcony, bedroom, master bedroom, toilets and bathroom, indoor doors, furniture details and much more of house details.

Uploaded by:
Eiz
Luna

