Office floor framing and constructive structure details dwg file
Description
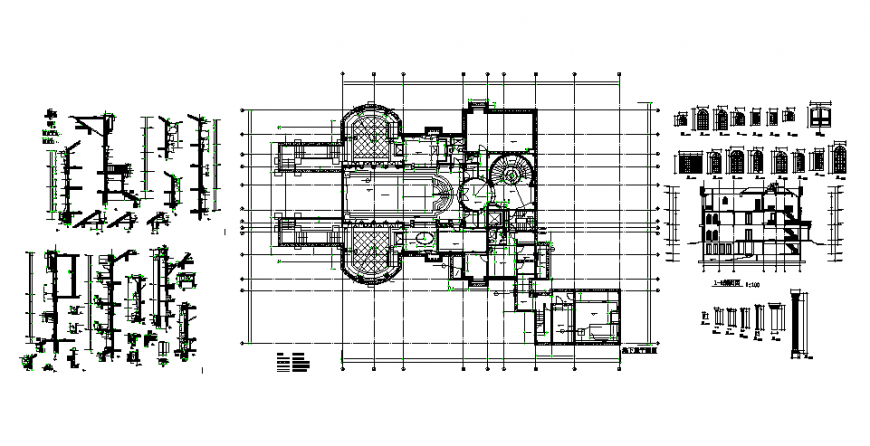
Office floor framing and constructive structure details that includes a detailed view of wood posts, joints, decking, grider pre-engineering, steel pipe column, play joints, existing floor joints, knee wall, steel pipe column, beam schedule details, staircase vest scenario, ceramic floor, horizontal section, tapizon novoflor corrugated beige, ceramic floor celima color blanco, foot print ceramic, novice glue, steps details, supportive wooden railing installation, base floor concrete plan, wall construction, dimensions details, measures and much more of framing plan details.
File Type:
DWG
File Size:
36 KB
Category::
Construction
Sub Category::
Construction Detail Drawings
type:
Gold
Uploaded by:
Eiz
Luna

