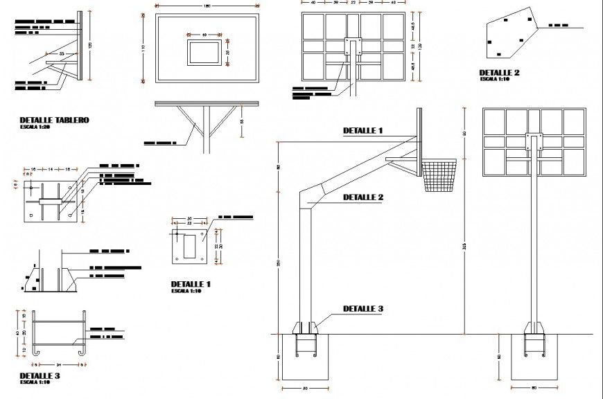
Basket ball pole design drawing in dwg file.
Description
Basket ball pole design drawing in dwg file. detail drawing of basket ball pole , plan , elevation and side elevation detail, blowup joinery detail drawing , side elevation of pole with details and dimensions.

Uploaded by:
Eiz
Luna

