Toilet and bathroom section and installation details of sports center dwg file
Description
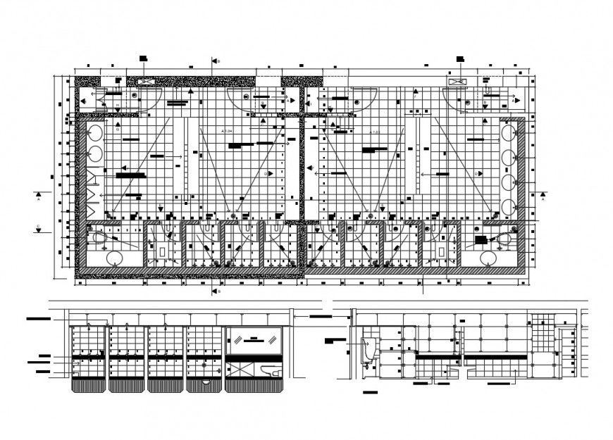
Toilet and bathroom section and installation details of sports center that includes a detailed view of glass brick details, skirting details, ceramic tile, lockers, legde, door details, door frame, sanitary equipment installation details, doors and ventilation details, plumbing details, interior details, men toilet, mirror, female toilet, wall section, dimensions details and much more of toilet and bathroom details.
File Type:
DWG
File Size:
346 KB
Category::
Interior Design
Sub Category::
Bathroom Interior Design
type:
Gold

Uploaded by:
Eiz
Luna

