LOGIN
HOME
CATEGORIES
UPLOAD FILE
PRICING
HOUSE PLAN
ABOUT US
CONTACT US
Bus Terminus AutoCAD File
Home
Categories
Architecture
Government Building
Bus Terminus AutoCAD File
Uploaded by:
Priyanka
Patel
View Profile
View Profile
Description
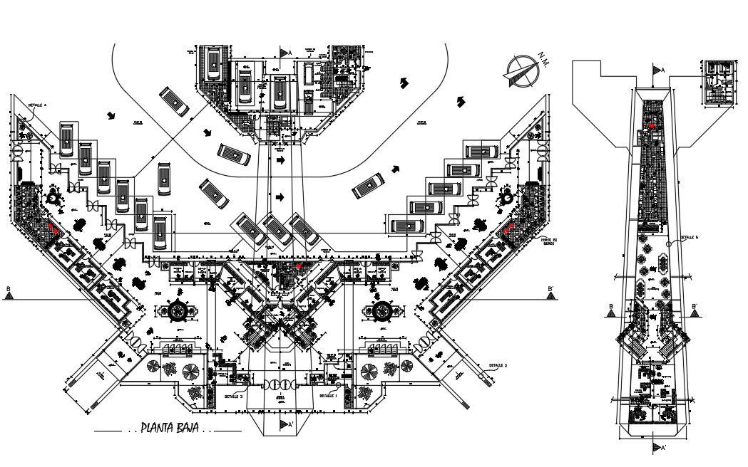
Bus Terminus AutoCAD File, This Bus terminus Lay-Out Design Draw in Autocad format. Bus Terminus Detail Design, Bus Terminus Detail DWG File.
File Type:
3d max
File Size:
7.5 MB
Category::
Architecture
Sub Category::
Government Building
type:
Free
Uploaded by:
Priyanka
Patel
View Profile
Download
Add to libary
find Latest
Related
Files