Second floor plan details of single family house dwg file
Description
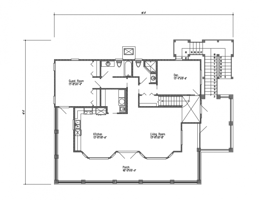
Second floor plan details of single family house that includes a detailed view of guest room, den, living room, kitchen, porch, sanitary facilitis, dimensions details and much more of floor plan details.
Uploaded by:
Eiz
Luna

