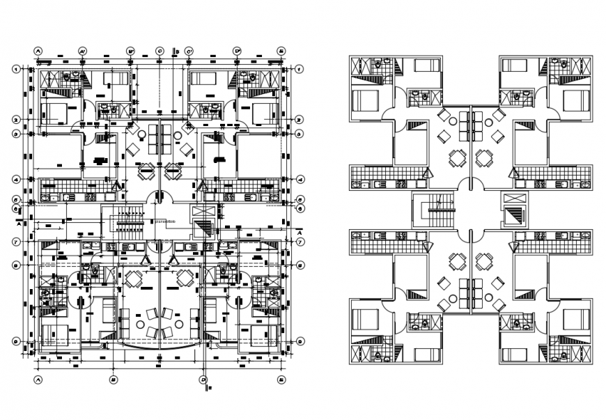
Multi-family apartment building layout plan, furniture layout plan and auto cad details dwg file
Description
Multi-family apartment building layout plan, furniture layout plan and auto cad details that includes a detailed view of main entry gate, mini garden, car parking view, main entry house door, drawing room, living room, family hall, kitchen, dining area, indoor staircases, laundry area, balcony, bedroom, master bedroom, toilets and bathroom, indoor doors, furniture details and much more of apartment project.
Uploaded by:
Eiz
Luna

