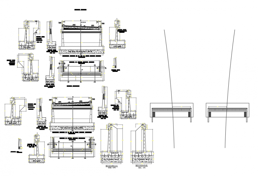
Ponton form work reinforcement constructive structure details dwg file
Description
Ponton form work reinforcement constructive structure details that includes a detailed view of Reinforced concrete parapet, Stuffed with tezontle, average thickness, Stuck with cement-sand mortar prop, Waterproofing based on prefabricated membrane, Wall concrete hollow block smooth finish, based on granitic acrylic resins, Hollow block wall heavy type of cm and much more of reinforcemnet details.
File Type:
DWG
File Size:
321 KB
Category::
Construction
Sub Category::
Concrete And Reinforced Concrete Details
type:
Gold
Uploaded by:
Eiz
Luna

