Platform detail plan of a kitchen plan dwg file
Description
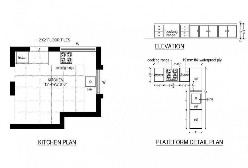
Platform detail plan of a kitchen plan dwg file. with drawing of 2'X2' floor tiles, sink, cooking range, fridge, drower, self, kitchen 13'-41/2"x10'-0" and much more.
Uploaded by:
Eiz
Luna
Platform detail plan of a kitchen plan dwg file. with drawing of 2'X2' floor tiles, sink, cooking range, fridge, drower, self, kitchen 13'-41/2"x10'-0" and much more.
Uploaded by:
Luna