Office kitchen architecture project details dwg file
Description
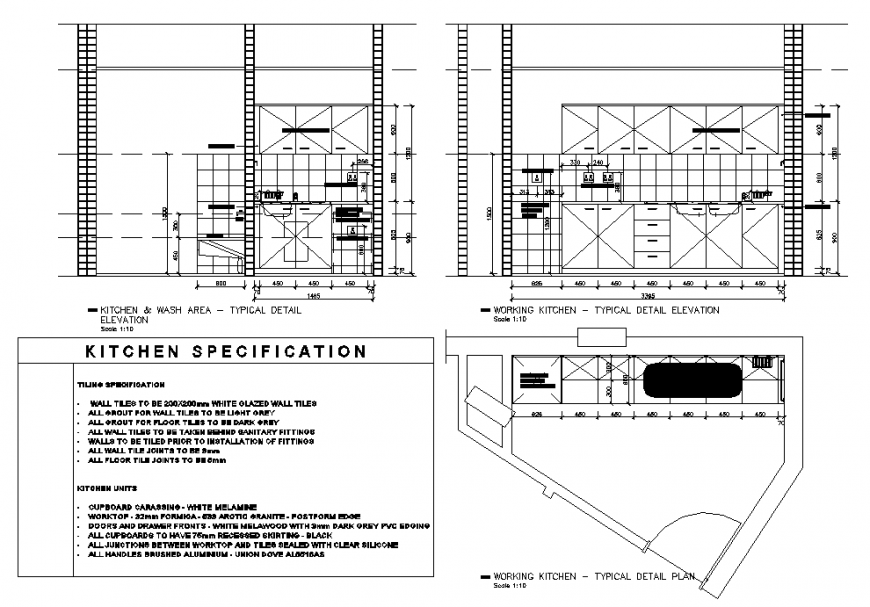
Office kitchen architecture project details that includes a detailed view of kitchen and wash area typical elevation details, working kitchen, typical detail plan, dimensions details, scale details, kitchen specification and much more of kitchen project.
Uploaded by:
Eiz
Luna

